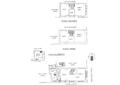
Negozio/Locale commerciale in vendita Piazza della Vittoria 20, Pavia
Salva
Casa.it
1/17
  • Street View
  • Map