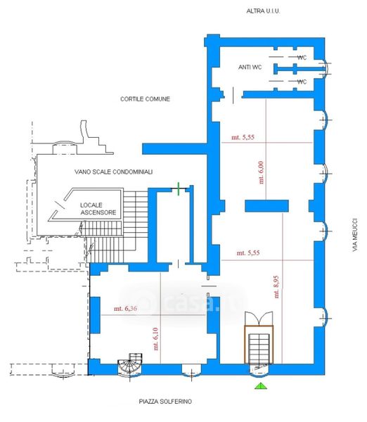
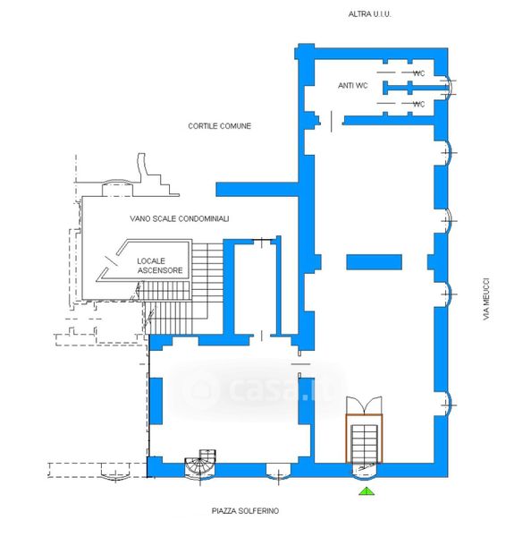
Negozio/Locale commerciale in vendita Piazza Solferino 14, Torino
Salva
Casa.it
1/16
  • Street View
  • Map