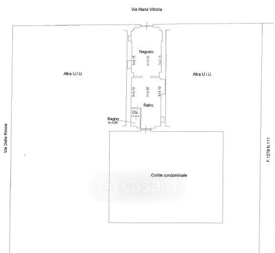
Negozio/Locale commerciale in affitto Via Maria Vittoria 41 E bis, Torino
Salva
Casa.it
1/21
  • Street View
  • Map