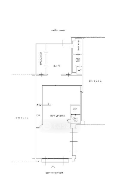
Negozio/Locale commerciale in affitto Corso Giuseppe Garibaldi 248, Venaria Reale
Salva
Casa.it
1/29
  • Street View
  • Map