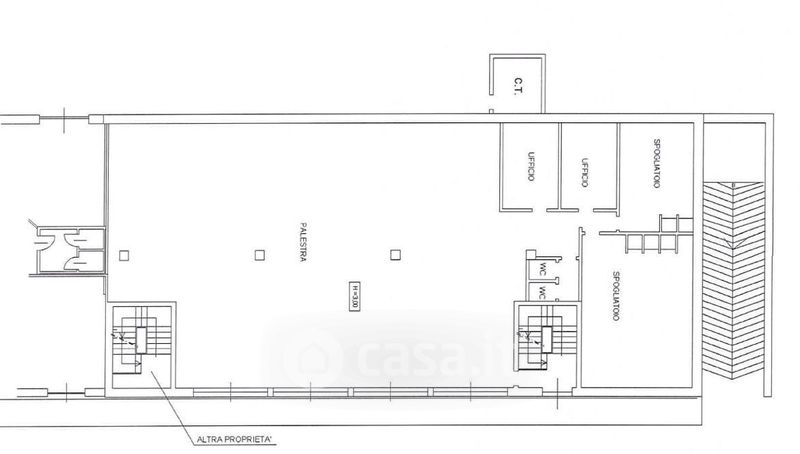
Negozio/Locale commerciale in vendita Corso Papa Giovanni Paolo II 29, Vercelli
Salva
Casa.it
1/14
  • Street View
  • Map