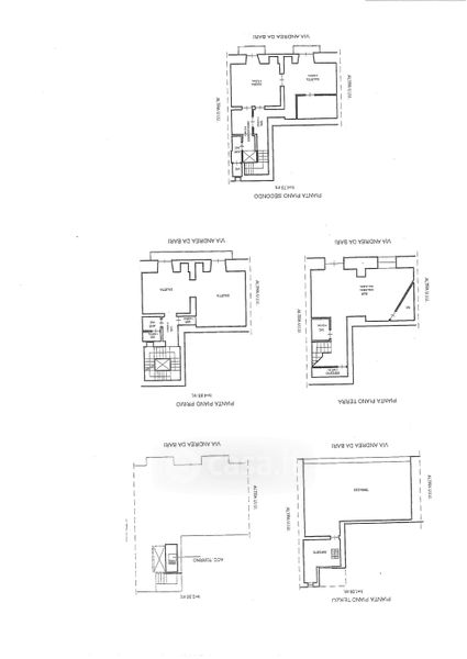
Negozio/Locale commerciale in vendita Via Andrea da Bari , Bari
Salva
Casa.it
1/29
  • Street View
  • Map