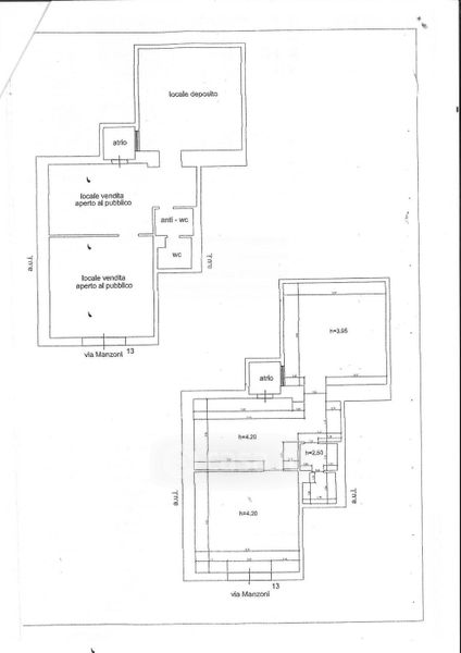
Negozio/Locale commerciale in vendita Via Manzoni 11, Mola di Bari
Salva
Casa.it
1/8
  • Street View
  • Map