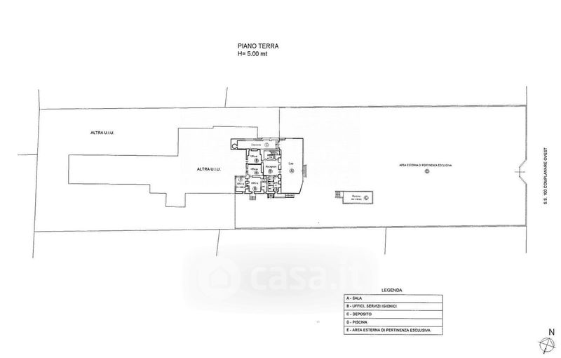
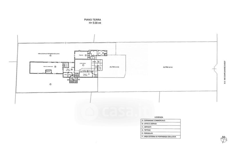
Negozio/Locale commerciale in affitto Strada Statale 100 , Triggiano
Salva
Casa.it
1/9
  • Street View
  • Map