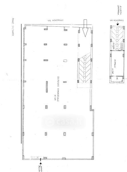
Negozio/Locale commerciale in vendita Via Industriale 35, Messina
Salva
Casa.it
1/13
  • Street View
  • Map