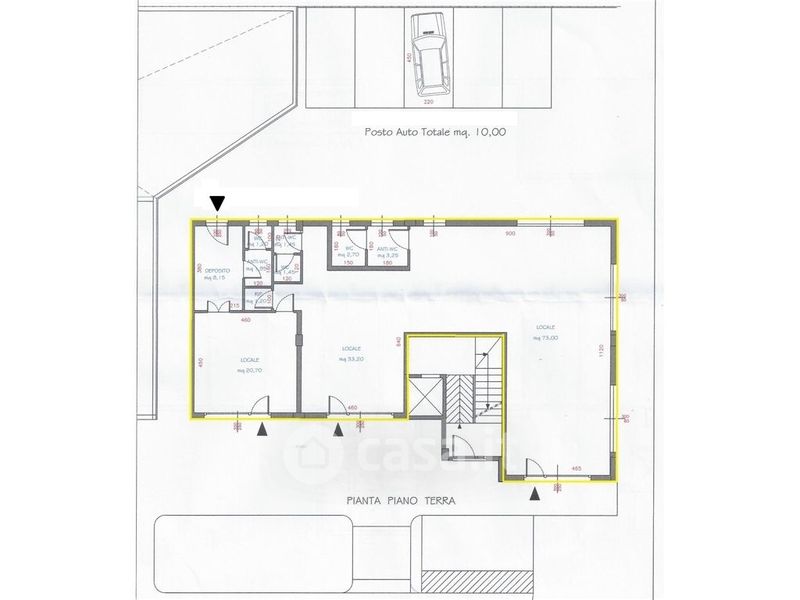
Negozio/Locale commerciale in vendita Via Dino Caponi , Empoli
Salva
Casa.it
1/20
  • Street View
  • Map