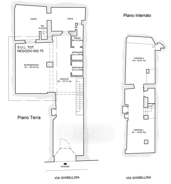
Negozio/Locale commerciale in vendita Via Ghibellina 115 r, Firenze
Salva
Casa.it
1/11
  • Street View
  • Map