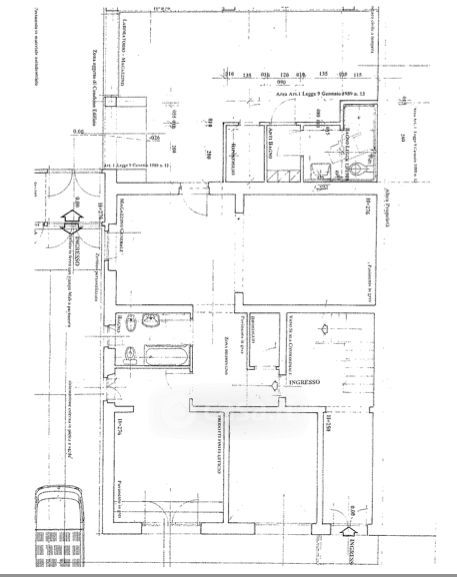
Negozio/Locale commerciale in vendita Via dell'Olivuzzo , Firenze
Salva
Casa.it
1/29
  • Street View
  • Map