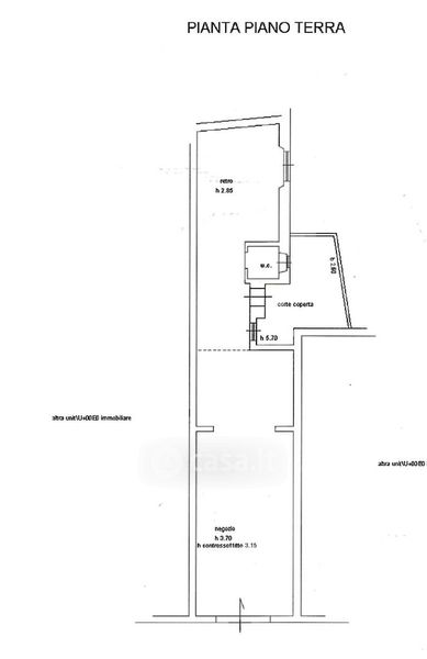
Negozio/Locale commerciale in vendita Viale Giuseppe Mazzini , Firenze
Salva
Casa.it
1/3
  • Street View
  • Map