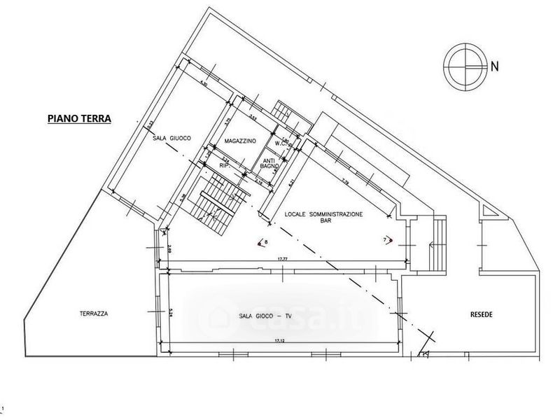
Negozio/Locale commerciale in affitto Via di Brozzi 102, Firenze
Salva
Casa.it
1/20
  • Street View
  • Map