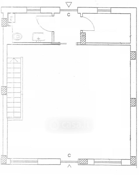
Negozio/Locale commerciale in vendita Via Antonio Canova , Firenze
Salva
Casa.it
1/21
  • Street View
  • Map