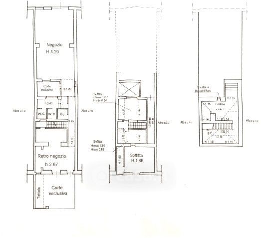
Negozio/Locale commerciale in vendita Piazza del Mercato Centrale , Firenze
Salva
Casa.it
1/40
  • Street View
  • Map