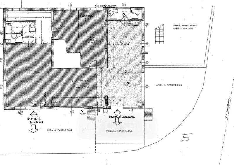
Negozio/Locale commerciale in vendita Via Giosuè Carducci , Quarrata
Salva
Casa.it
1/7
  • Street View
  • Map