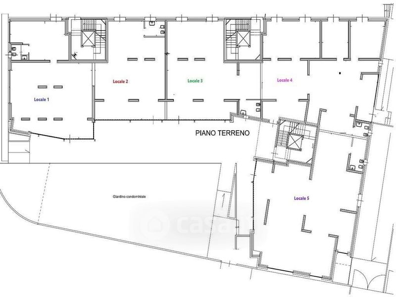
Negozio/Locale commerciale in affitto Viale L.Ariosto 516, Sesto Fiorentino
Salva
Casa.it
1/29
  • Street View
  • Map