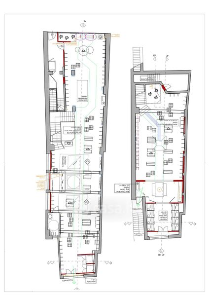
Negozio/Locale commerciale in affitto Via Museo , Bolzano
Salva
Casa.it
1/15
  • Street View
  • Map