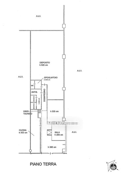
Negozio/Locale commerciale in affitto Via delle Arti , Thiene
Salva
Casa.it
1/3
  • Street View
  • Map