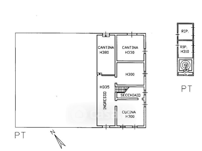
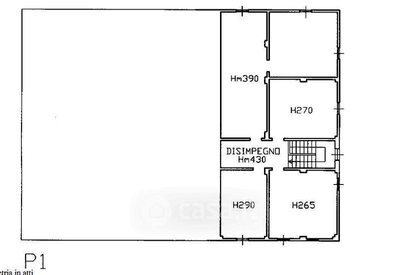
Rustico/Casale in vendita Via Viazza in Destra 46, Budrio
Salva
Casa.it
1/17
  • Street View
  • Map