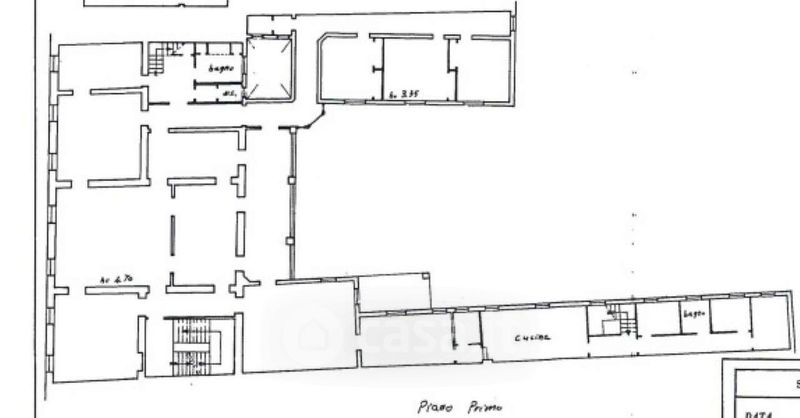
Rustico/Casale in vendita Corso Giacomo Matteotti , Faenza
Salva
Casa.it
1/34
  • Street View
  • Map