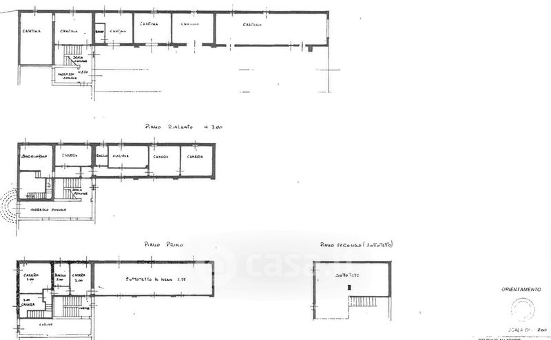
Rustico/Casale in vendita Via Giuseppe Mazzini 134, Scandiano
Salva
Casa.it
1/10
  • Street View
  • Map