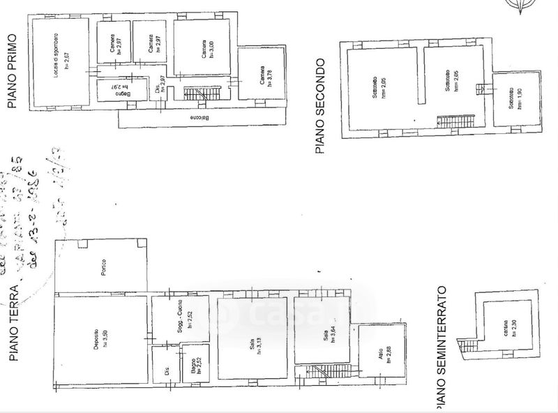
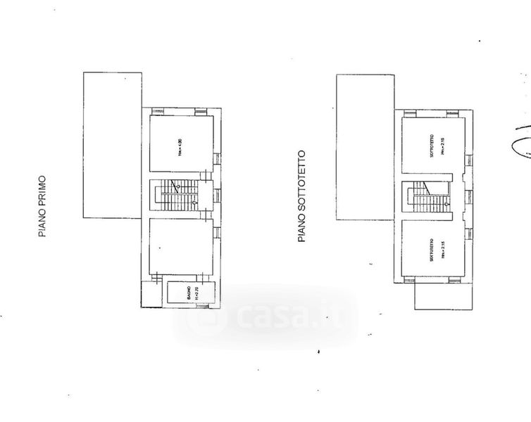
Rustico/Casale in vendita Località Crosignano 1, Ziano Piacentino
Salva
Casa.it
1/46
  • Street View
  • Map