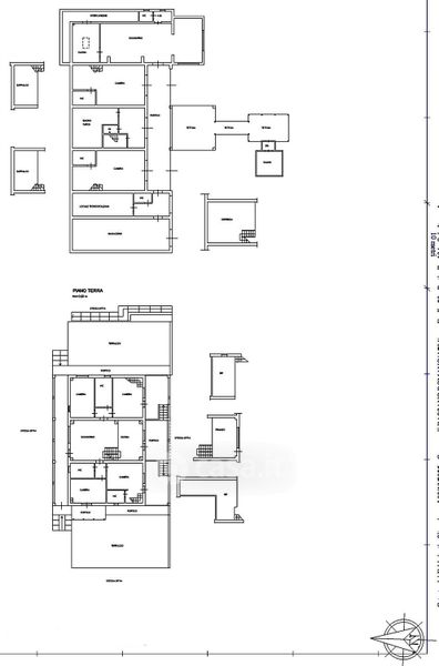
Rustico/Casale in vendita Strada Comunale Oriolese , Bassano Romano
Salva
Casa.it
1/81
  • Street View
  • Map