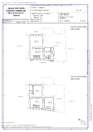
Rustico/Casale in vendita Via Principale , Imperia
Salva
Casa.it
1/18
  • Street View
  • Map