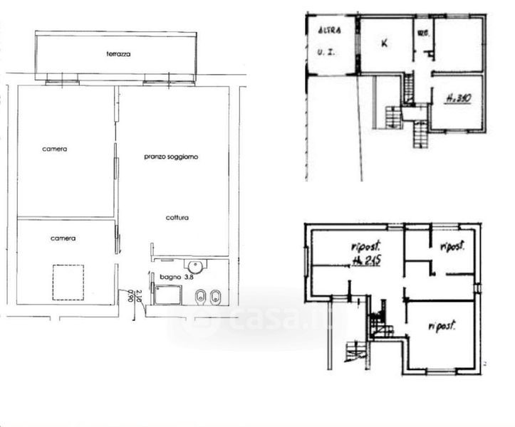
Rustico/Casale in vendita Via Galileo Galilei 30, Casalmaggiore
Salva
Casa.it
1/7
  • Street View
  • Map