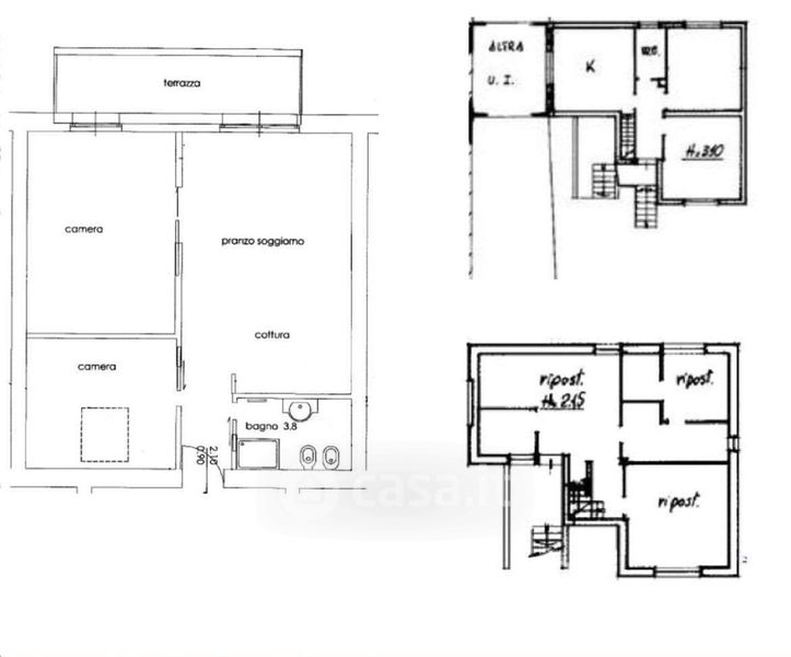
Rustico/Casale in vendita Via Magenta 1, Castegnato
Salva
Casa.it
1/28
  • Street View
  • Map