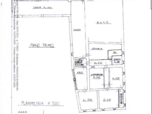
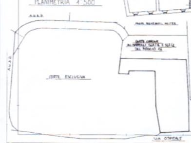
Rustico/Casale in vendita Via Ospitale , Nave
Salva
Casa.it
1/44
  • Street View
  • Map