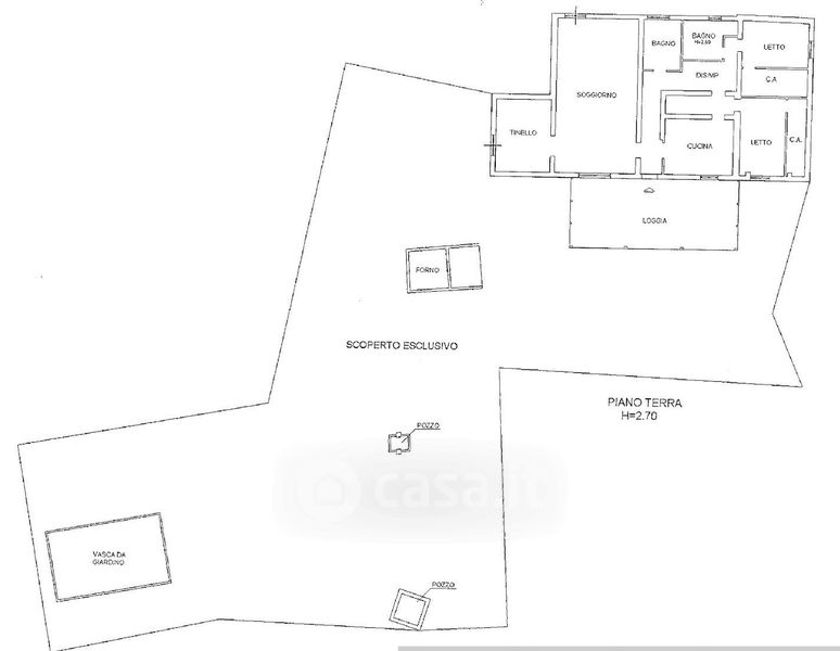
Rustico/Casale in vendita Via Roncosambaccio , Fano
Salva
Casa.it
1/30
  • Street View
  • Map