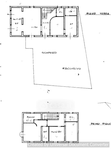
Rustico/Casale in vendita Strada della Valle dei Pelati , Pesaro
Salva
Casa.it
1/46
  • Street View
  • Map