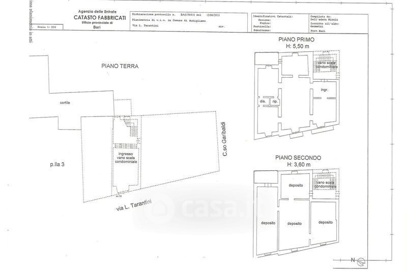
Rustico/Casale in vendita Via L. Tarantini , Rutigliano
Salva
Casa.it
1/68
  • Street View
  • Map