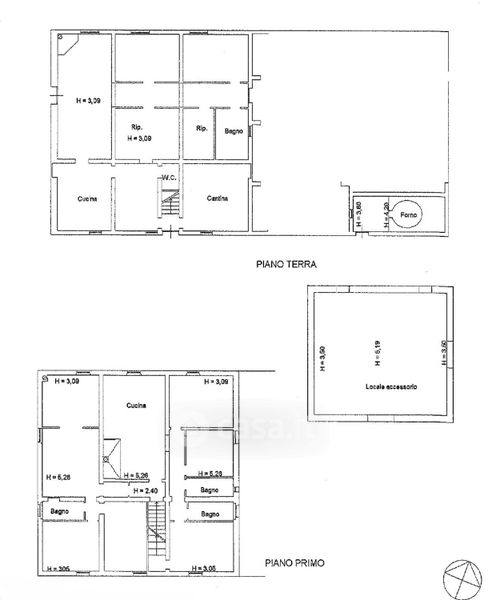
Rustico/Casale in vendita Strada Provinciale 451 di Monte Oliveto 18, Asciano
Salva
Casa.it
1/23
  • Street View
  • Map