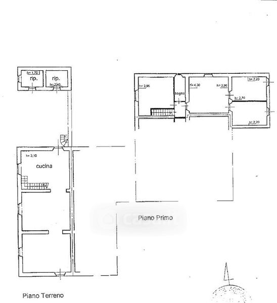
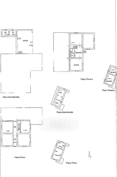
Rustico/Casale in vendita Via I° Maggio 21 -15, Barberino di Mugello
Salva
Casa.it
1/14
  • Street View
  • Map