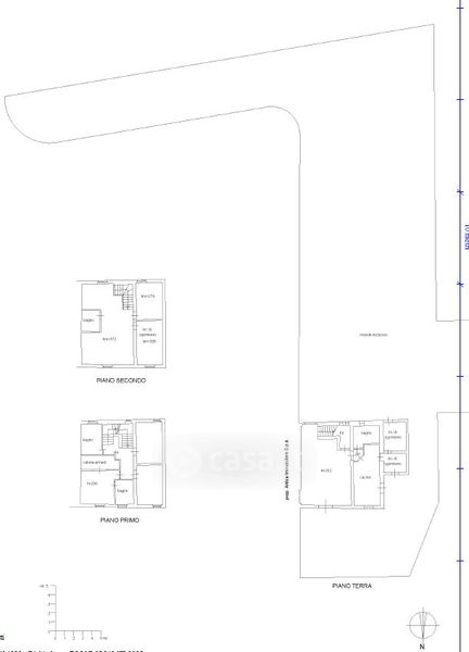
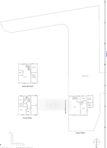
Rustico/Casale in vendita Via Macchiarella Sud , Cascina
Salva
Casa.it
1/31
  • Street View
  • Map