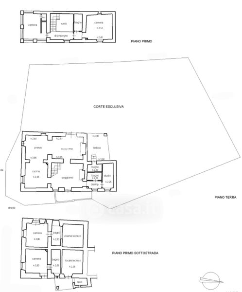
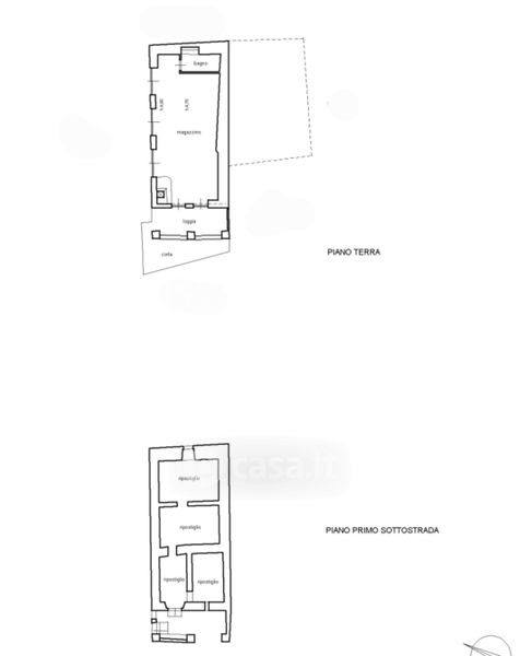
Rustico/Casale in vendita C.a. Pierle 28, Cortona
Salva
Casa.it
1/57
  • Street View
  • Map