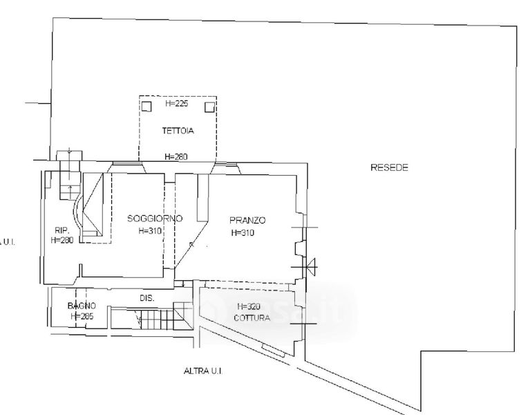
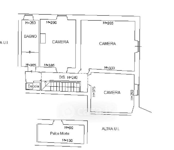
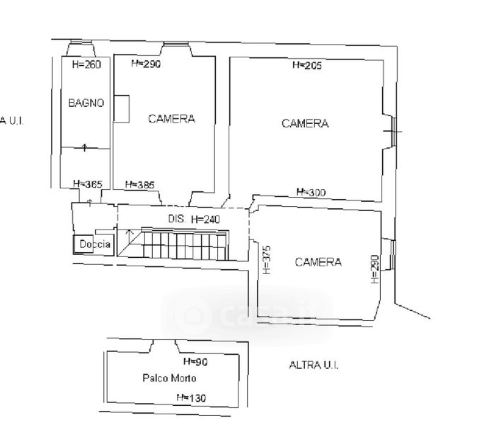
Rustico/Casale in affitto Via Quintole per le Rose , Impruneta
Salva
Casa.it
1/43
  • Street View
  • Map