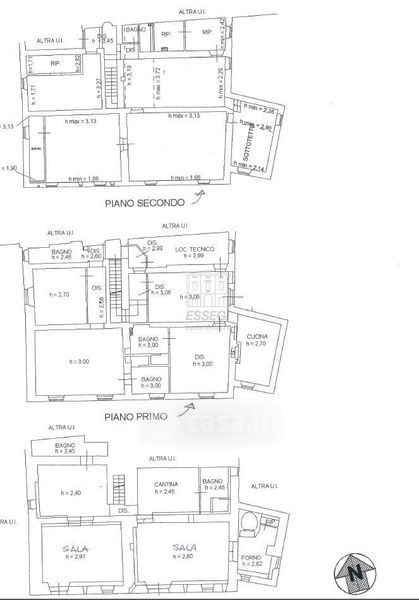
Rustico/Casale in vendita Via della Pieve Santo Stefano 7165, Lucca
Salva
Casa.it
1/71
  • Street View
  • Map