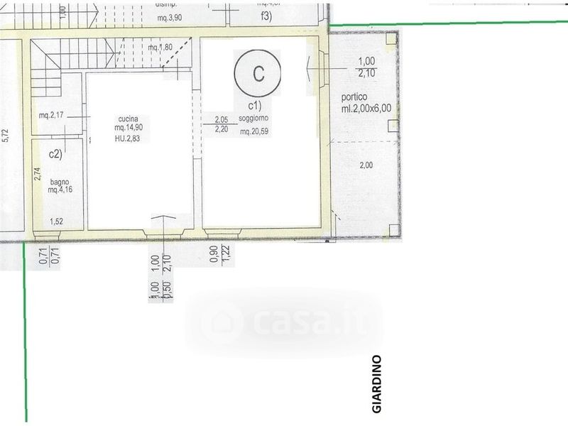
Rustico/Casale in vendita Via di Pulica , Montelupo Fiorentino
Salva
Casa.it
1/6
  • Street View
  • Map