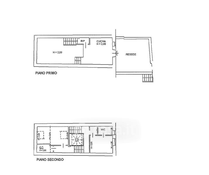
Rustico/Casale in vendita Via dello Stracchino , Pontassieve
Salva
Casa.it
1/60
  • Street View
  • Map