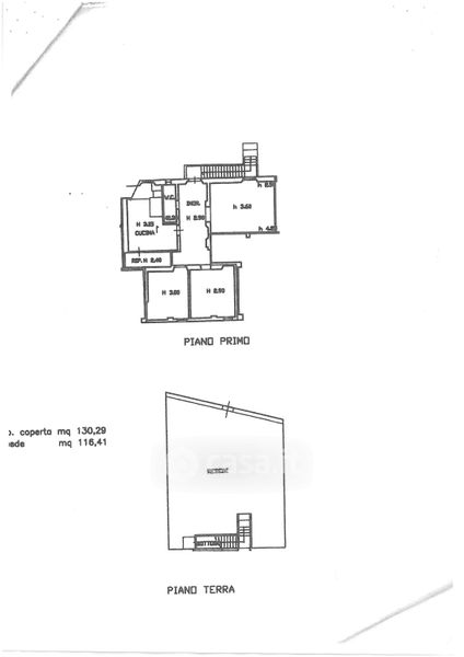
Rustico/Casale in vendita Via del Leone , Prato
Salva
Casa.it
1/16
  • Street View
  • Map