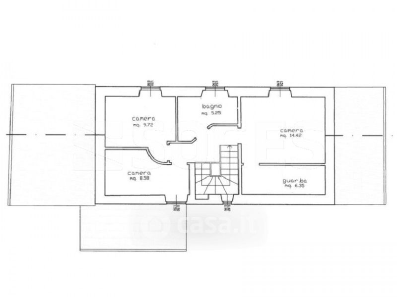
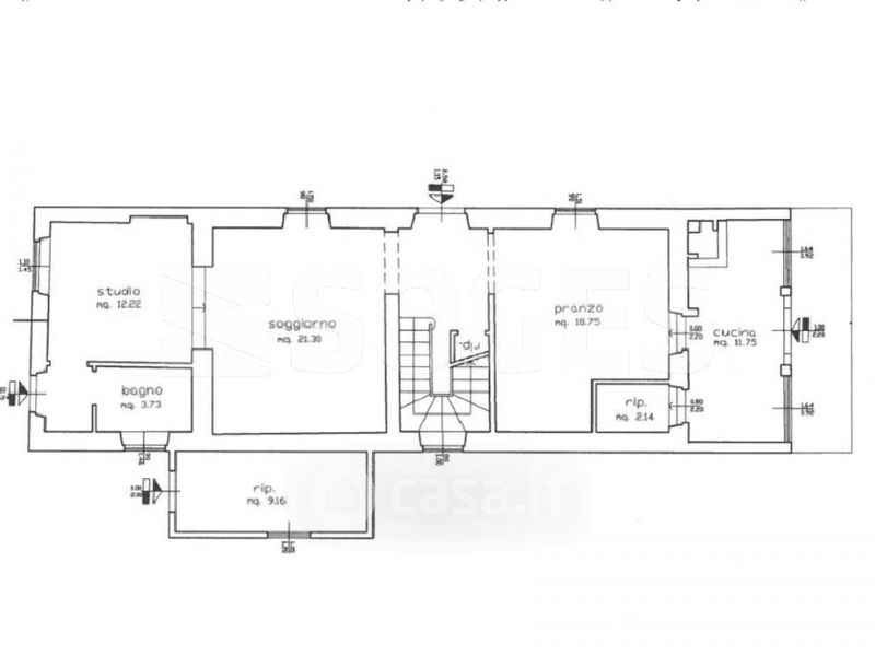
Rustico/Casale in vendita Via Pian dell' Isola 3, Rignano sull'Arno
Salva
Casa.it
1/20
  • Street View
  • Map