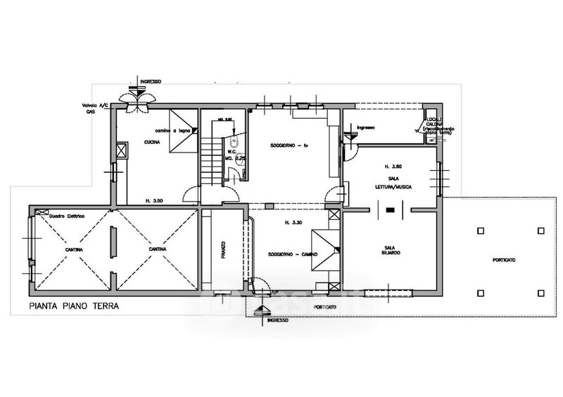
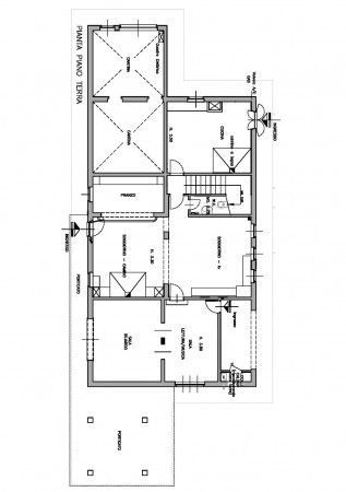
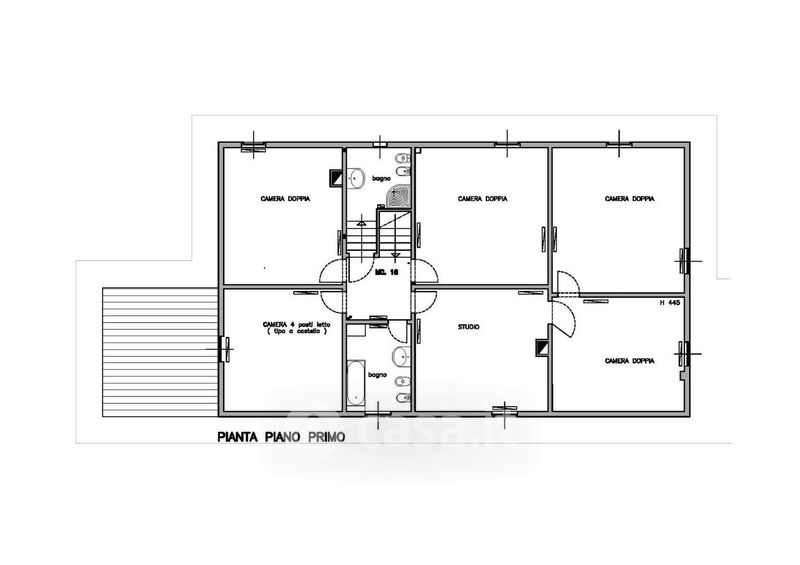
Rustico/Casale in vendita Via Gello , San Miniato
Salva
Casa.it
1/25
  • Street View
  • Map