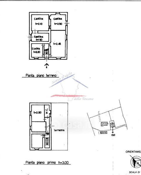
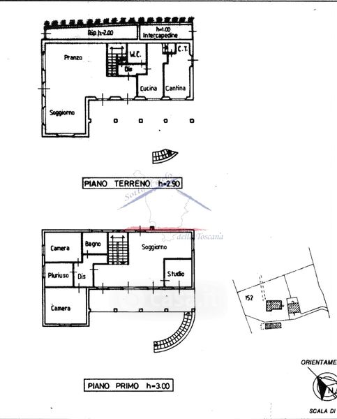
Rustico/Casale in vendita Strada senza nome , Subbiano
Salva
Casa.it
1/33
  • Street View
  • Map