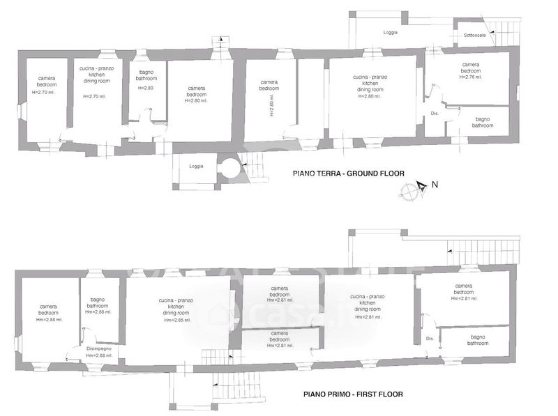
Rustico/Casale in vendita Vocabolo Acquaiole , Città della Pieve
Salva
Casa.it
1/23
  • Street View
  • Map