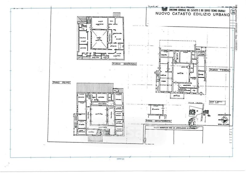
Rustico/Casale in vendita Strada Comunale San Vetturino 13, Perugia
Salva
Casa.it
1/41
  • Street View
  • Map