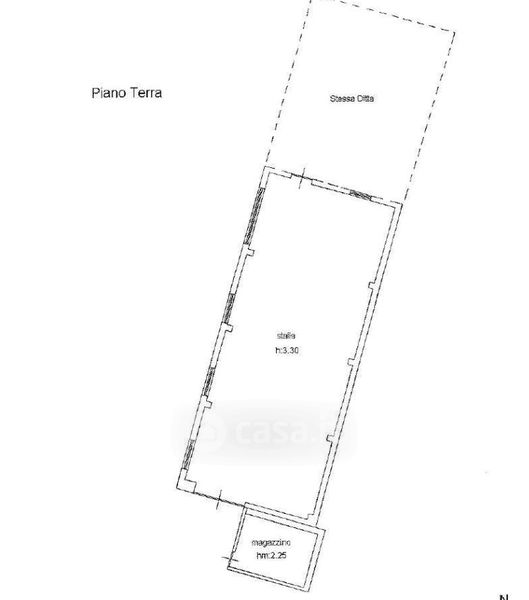
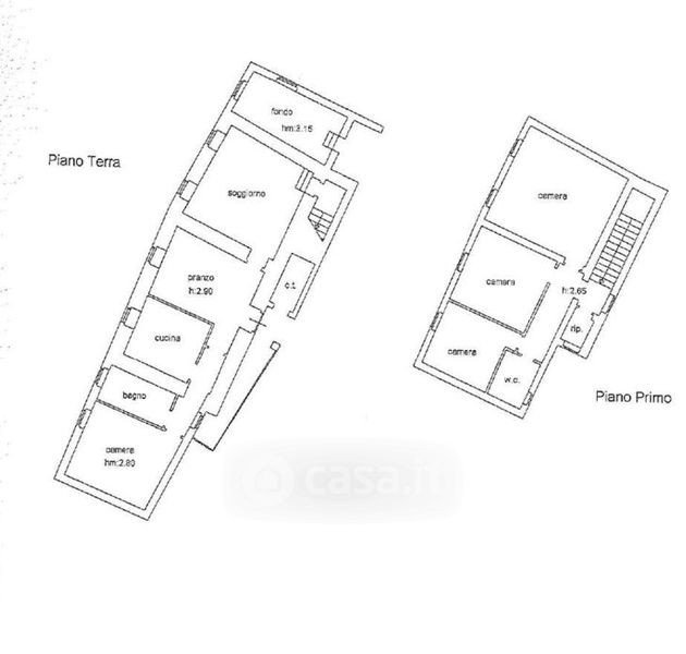
Rustico/Casale in vendita Frazione Collerisana , Spoleto
Salva
Casa.it
1/75
  • Street View
  • Map