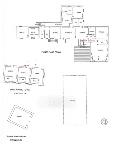
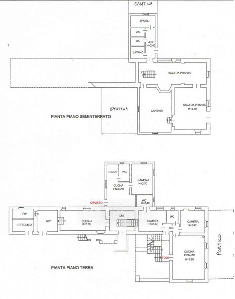
Rustico/Casale in vendita Strada Statale 79 bis , Todi
Salva
Casa.it
1/84
  • Street View
  • Map