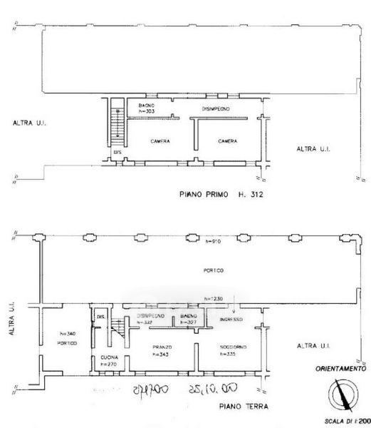
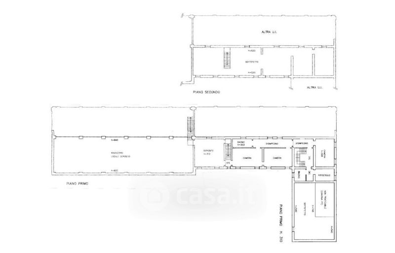
Rustico/Casale in vendita Via Roma , Agugliaro
Salva
Casa.it
1/42
  • Street View
  • Map