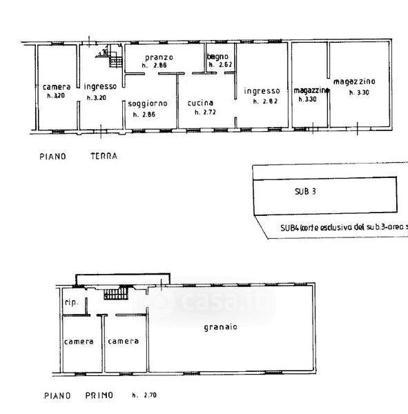
Rustico/Casale in vendita Via Chiesa Conscio 1, Casale sul Sile
Salva
Casa.it
1/21
  • Street View
  • Map